
$1,079,000
About this Detached
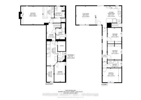
***OPEN HOUSE 18th - 19th October (2:00-4:00 PM) *** Welcome to this beautifully extended cottage-style bungalow, located near the picturesque Scarborough Bluffs in one of the area's most established communities.Enjoy scenic views from both the front and back yards, enhanced by spacious extended decks-perfect for relaxing or entertaining. This home is ideally situated just steps from top-rated schools, including R.H. King Academy and Anson Park Public School.The separate entrance basement features two self-contained units and an additional office space providing excellent rental income potential, possibly enough to cover your entire mortgage.
Listed by PROEDGE REALTY INC..
Brought to you by your friendly REALTORS® through the MLS® System, courtesy of Brixwork for your convenience.
Disclaimer: This representation is based in whole or in part on data generated by the Brampton Real Estate Board, Durham Region Association of REALTORS®, Mississauga Real Estate Board, The Oakville, Milton and District Real Estate Board and the Toronto Real Estate Board which assumes no responsibility for its accuracy.
Features
- MLS®: E12445978
- Type: Detached
- Bedrooms: 3
- Bathrooms: 3
- Square Feet: 1,100 sqft
- Lot Size: 5,252 sqft
- Frontage: 47.00 ft
- Depth: 111.75 ft
- Taxes: $4,102 (2024)
- Parking: 4 Attached
- Basement: Finished, Separate Entrance
- Style: Bungalow